Crimson Collection:
Plan 1866
Valencia by FivePoint
Plan 1866
A thoughtfully layered townhome that balances privacy, flexibility, and inviting shared spaces.

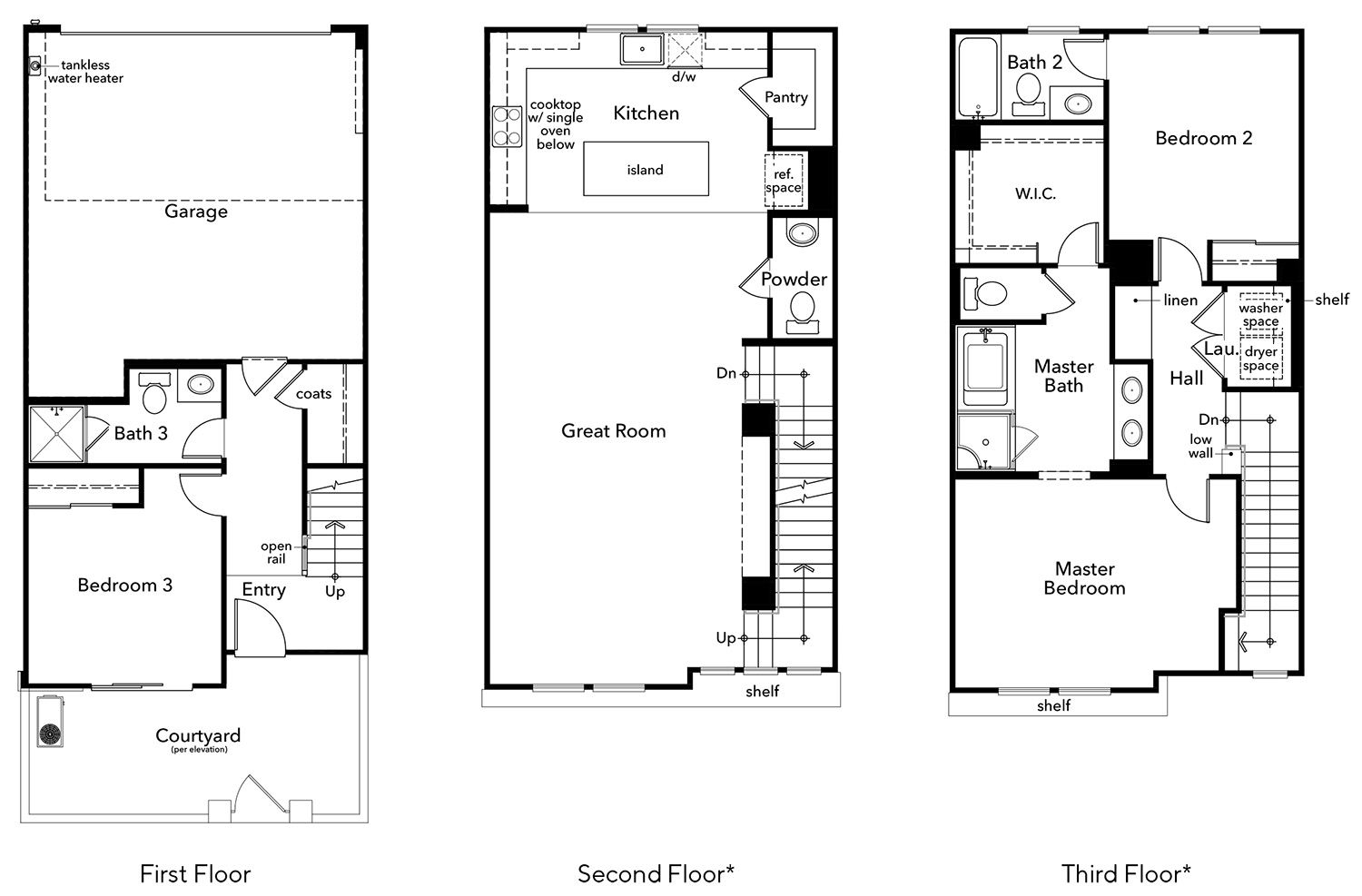
Plan 1866 is a three-story townhome that creates a natural rhythm between everyday living, private retreats, and flexible spaces. This particular plan in Crimson was not a decorated model so there are no interior pictures available, so, we will do our best to describe it for you!
The entry-level bedroom offers versatility for guests, a home office, or multigenerational needs, while the central living level brings everyone together with an open great room and kitchen designed for connection and comfort.
The upper level is dedicated to rest and routine, featuring a primary suite with a walk-in closet, a secondary bedroom, and a conveniently located laundry area. Thoughtful storage, an efficient vertical layout, and ENERGY STAR®–certified features make this plan especially appealing to buyers who value smart design, livability, and long-term efficiency.
Sq. Ft.
1,866
Bedrooms
3
Bathrooms
3.5
Garage
2-Bay
Stories
3
A Walk Around the Community
Note: Plan 1866 was not a modeled, decorated plan – no interior photos were available
Crimson Collection
27136 Observation Court.
Valencia, CA 91381
Love Crimson Plan 1866?
Let’s Watch for it Together.
Although Crimson Plan 1866 is sold out, resale opportunities may occasionally become available within the Crimson neighborhood at Valencia by FivePoint. Let us know you’re interested by filling out the form and we’ll keep an eye out for you. Your favorite model could come up at any time—so let’s be ready when it does!

Thinking of Selling Your Home in Crimson?
If you currently own a home in Crimson and are considering selling — now or in the future — we’d love to hear from you. Ranch on the River helps connect homeowners with informed buyers who already appreciate this community and its homes. Whether you’re just gathering information or ready to take the next step, we’re happy to start the conversation.
No Obligation • No Pressure • Just Information
See the Entire Collection
Explore all of the plans at Crimson by KB Home in Valencia by FivePoint. This townhome collection offers three-story floorplans with 3–4 bedrooms, modern design, and resale potential.










